4664 Lambeth, Carmel, IN 46033
- 4 beds |
- 3 baths |
- 1,888 sqft
Single-Family Home
Built in 1979
6,098sqft lot
2 car garage
$204/sqft
Listed 3 days ago
Property Description
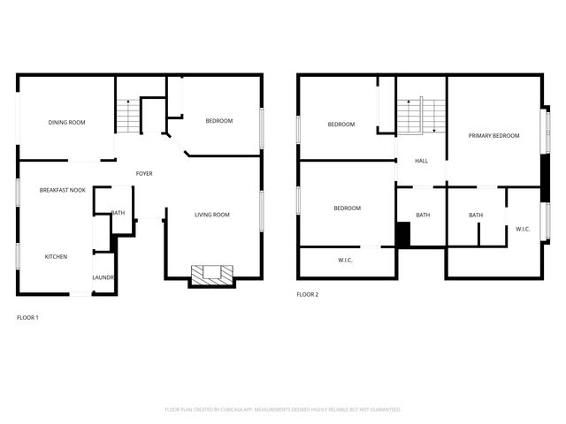
Nestled in the custom Brookshire Village neighborhood within the highly rated Carmel Schools district, this beautifully updated 4-bedroom, 2.5-bath home offers the perfect blend of comfort, character, and convenience. Freshly painted throughout, the main floor features new luxury vinyl plank flooring, an eat-in kitchen with newly painted cabinetry, subway tile backsplash, and plenty of space for casual dining. A formal dining room and spacious living room with a wood-burning fireplace and custom built-ins create a warm, inviting atmosphere for everyday living and entertaining. Upstairs, you'll find three large bedrooms with large closets and built-in shelving, including a primary suite with a walk-in tile shower and a generous closet that wraps around the bathroom. The fourth bedroom is conveniently located on the main floor. Outside, enjoy a fenced backyard surrounded by mature trees and newly added neighborhood sidewalks perfect for evening walks. Major updates include a 3-year-old roof, 6-year-old HVAC, new water heater (2020), and washer/dryer (2022). Ideally located within a 1-2 minute drive to Mohawk Trails Elementary and offering easy access to Keystone Parkway, this home is also just minutes from numerous parks, top-rated golf courses, and the Brookshire Golf Club-truly showcasing Carmel living at its best!
- Listing Status:
- Active
- Listing Office:
- @properties : 317-755-7055
- Listing Agent:
- Trent Whittington : 317-755-7055
- MLS ID:
- 22069342

- General: Storage Shed
- Style: Traditional
- Parking: Attached
- General: TwoBlock
- HOA Amenities: MaintenanceEntrance CommonMaintenance230.0Annually
- Originating MLS: mibor
- School District: Carmel Clay Schools
- County: Hamilton
- Zoning: Acreage .00Section 32Township 18Range 4Brookshire VillageReplat Information: ReplatSection 1Lot 30Irregular S291032203038000018
- Fencing: FullPrivacy
- Water: Public
- Source: mibor
This listing courtesy of Trent Whittington, @properties
Monthly Payment
- Principal & Interest $
- Property Taxes $
- Home Insurance $
- VA Funding Fee $
Location
Schools Nearby
Mohawk Trails Elementary School
4242 E 126th St, Carmel, IN, 46033
Grades KG-5
0.53 miles away
Clay Middle School
5150 E 126th St, Carmel, IN, 46033
Grades 6-8
0.61 miles away
Carmel High School
520 E Main St, Carmel, IN, 46032
Grades 9-12
1.70 miles away






