2027 Thompson Avenue, Fort Wayne, IN 46802
- 3 beds |
- 1 bath |
- 1,980 sqft
Single-Family Home
Built in 1917
5,663sqft lot
—— car garage
$76/sqft
Listed 7 days ago
Property Description
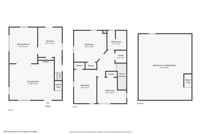
Welcome to 2027 Thompson Avenue, a great starter home located in the historic Reidmillers Addition near downtown Fort Wayne. This charming two story residence offers approximately 1,300sqft of living space with 3 bedrooms and 1 bathroom, showcasing timeless character and inviting warmth throughout. Inside, you’ll find natural woodwork, new luxury vinyl plank flooring, new laminate kitchen countertops, new kitchen cabinets, and large windows that fill the home with abundant natural light. The vintage layout between the living and dining areas highlights the home’s charm while providing a comfortable flow for everyday living. Outdoor spaces include a covered front porch, a raised covered deck, and an open patio off the deck, perfect for entertaining or enjoying quiet evenings at home. The fenced yard and deep lot offer plenty of room for recreation, gardening, or pets. Additional benefits include a storage shed, recently serviced furnace, some new drain plumbing, new refrigerator, 1 year old oven, recently serviced water heater, fresh interior paint, and freshly sealed hardwood floors upstairs. Ideally located near George’s International Market, Electric Works, Foellinger-Freimann Botanical Conservatory, Parkview Field, and the Embassy Theatre, with additional entertainment nearby at the Clyde Theatre. Enjoy popular local dining options such as Bravas, Banh Mi Pho Shop, Mad Anthony Brewing Company, and Tacos Arandas “El Amish”, as well as national favorites like Starbucks, McDonald’s, Arby’s, Taco Bell, and Rally’s. With its prime location, vintage character, and spacious yard, this home offers the perfect blend of classic charm and city convenience. Schedule your showing today and discover the potential at 2027 Thompson Avenue!
- Listing Status:
- Active
- Date Added:
- October 20, 2025 at 05:00AM
- Listing Office:
- North Eastern Group Realty : 260-489-7095
- Listing Agent:
- Warren Barnes : 260-438-5639
- MLS ID:
- 202542601
- General: Vinyl
- Style: Two Story
- Roofing: AsphaltDimensional ShinglesShingle
- School District: Fort Wayne Community
- Driveway: Other
- Zoning: RIEDMILLERS ADDITION N 25' LOT 14 & S 5' LOT 1502-12-10-429-014.000-074
- Fencing: MetalPrivacyWood
- Water: City
- Sewer: City
This listing courtesy of Warren Barnes, North Eastern Group Realty
Monthly Payment
- Principal & Interest $
- Property Taxes $
- Home Insurance $
- VA Funding Fee $
Location
Schools Nearby
Study Elementary School
2414 Brooklyn Ave, Fort Wayne, IN, 46802
Grades PK-5
0.62 miles away
Kekionga Middle School
2929 Engle Rd, Fort Wayne, IN, 46809
Grades 6-8
1.86 miles away
South Side High School
3601 S Calhoun St, Fort Wayne, IN, 46807
Grades 9-12
1.40 miles away






