5233 Nob Lane, Indianapolis, IN 46226
- 2 beds |
- 3 baths |
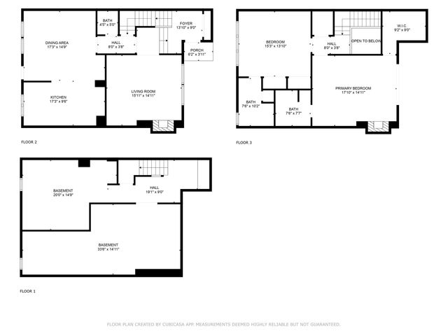
- 1,687 sqft
- Condominium 
- Built in 1966 
- 7,841sqft lot 
- 2 car garage 
- $175/sqft 
- Listed 3 months ago 
Property Description
A Price improvement on this rare gem, an Avriel Shull-designed condominium in the prestigious Ladywood Estates Historic District showcases iconic mid-century design. Freshly Painted and recent modern updates to Kitchen and the 3 Baths. Featuring expansive interiors, hardwood floors, striking iron stair railings, and two stone wood-burning fireplaces-one in the elegant living room and one in the luxurious primary suite with walk-in closet and private balcony. This exceptional unit offers two en-suite bedrooms, a partially finished basement with recreation room, and an exclusive fenced backyard with a meticulously landscaped patio. Includes two detached garages, a premium feature not available in all units. Residents enjoy access to the newly built Gathering Place with pergola and fire pit. Seize this unique chance to own a distinguished piece of Ladywood's architectural heritage.
- Listing Status:
- Active
- Listing Office:
- F.C. Tucker Company : 317-379-5848
- Listing Agent:
- Kelly Huff : 317-379-5848
- MLS ID:
- 22050913

- Style: Mid-Century Modern
- Other Structures: PorchPatio
- Parking: Detached
- General: Multi/SplitBlock
- HOA Amenities: Maintenance GroundsMaintenanceSnow RemovalTrashLawncareMaintenance GroundsMaintenance StructureMaintenanceNature AreaSnow RemovalTrash366.0Monthly
- Originating MLS: mibor
- School District: MSD Washington Township
- County: Marion
- Zoning: Ladywood Estates Horizontal Propertyregime 5233 Nob Lane(Bldg 3) & 2.0% Int In Common Area490709114037000800
- View: View
- Fencing: FullPrivacy
- Utilities: Cable ConnectedElectricity ConnectedNatural Gas ConnectedSep Electric MeterSep Gas MeterSep Sewer MeterSewer ConnectedWater Connected
- Water: Public
- Source: mibor
This listing courtesy of Kelly Huff, F.C. Tucker Company
Monthly Payment
- Principal & Interest $
- Property Taxes $
- Home Insurance $
- VA Funding Fee $
Location
Schools Nearby
Robert Lee Frost Elementary School 106
5301 Roxbury Rd, Indianapolis, IN, 46226
Grades PK-6
0.80 miles away
Arlington Middle School
120 E Walnut St, Indianapolis, IN, 46204
Grades 7-8
1.24 miles away
Thrival Academy
1500 E Michigan St, Indianapolis, IN, 46201
Grades 9-9
1.24 miles away






