801 S Spring Street, Mishawaka, IN 46544
- 2 beds |
- 2 baths |
- 2,730 sqft
Single-Family Home
Built in 1949
5,227sqft lot
1 car garage
$73/sqft
Listed 19 days ago
Property Description
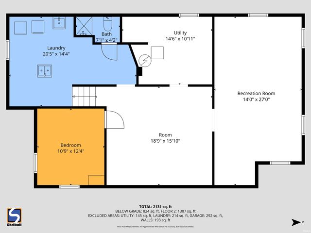
All BRICK SINGLE STORY HOME READY FOR NEW OWNERS, NEWER VINYL WINDOWS AND FURNACE, LARGE OPEN KITCHEN WITH LOTS OF CABINETS AND COUNTER SPACE! , ALL APPLIANCES REFRIGERATOR, STOVE RANGE, DISHWASHER , WASHER AND DRYER TO STAY. FORMAL FIREPLACE ON MAIN LEVEL AND BASEMENT. FORMAL DINING, LARGE LIVING ROOM AND LOTS OF DAYLIGHT WINDOWS. 2 GENEROUS SIZED BEDROOMS WITH ADDITIONAL BEDROOM IN BASEMENT USED AS A THIRD BEDROOM NON EGRESS. LARGE BASEMENT WITH ADDITIONAL LIVING ROOM, BATHROOM WITH STAND UP SHOWER AND LARGE LAUNDRY SERVICE ROOM AND UTILITY. ADDITIONAL FLEX SPACE IN BASEMENT OFFERS LOTS OF SPACE AND POTENTIAL. EXTERIOR IS MAINTAINABLE, WITH SEASON MUD ROOM AND CUTE OUTSIDE SPACE FOR ENTERTAINING. HOME REALLY HAS ALLOT OF POTENTIAL TO MAKE YOUR OWN PERSONAL TOUCH AND GROW EQUITY WHILE DOING IT!. 1 CAR GARAGE, MISHAWAKA SCHOOLS, CLOSE TO DOWNTOWN , SHOPPING AND RIVER WALK! SELLER IS OPEN TO FHA AND VA OFFERS AS WELL! THIS HOME OFFERS ALLOT OF SPACE!
- Listing Status:
- Active
- Date Added:
- October 9, 2025 at 05:00AM
- Listing Office:
- Home Expectations LLC : 574-274-0938
- Listing Agent:
- Robert Maskevich : 574-274-0938
- MLS ID:
- 202540975
- General: Brick
- Style: RanchOne Story
- Roofing: Asphalt
- School District: School City of Mishawaka
- Driveway: Concrete
- Zoning: 43.5 FT E SIDE LOT 47 MCINERNY & ENGELDRUMS 1ST ADD71-09-16-455-016.000-023
- Fencing: Partial
- Water: Public
- Sewer: Public
This listing courtesy of Robert Maskevich, Home Expectations LLC
Monthly Payment
- Principal & Interest $
- Property Taxes $
- Home Insurance $
- VA Funding Fee $
Location
Schools Nearby
Lasalle Elementary School
1511 Milburn Blvd, Mishawaka, IN, 46544
Grades PK-6
0.81 miles away
Oaklawn Campus Program
1411 Lincolnway W, Mishawaka, IN, 46544
Grades 7-12
0.81 miles away
Mishawaka High School
1202 Lincolnway E, Mishawaka, IN, 46544
Grades 9-12
1.28 miles away






