4991 Tynebrae Road, Lexington, KY 40515
- 4 beds |
- 4 baths |
- 4,641 sqft
Single-Family Home
Built in 1985
0.37acre lot
2 car garage
$154/sqft
Listed 4 months ago
Property Description
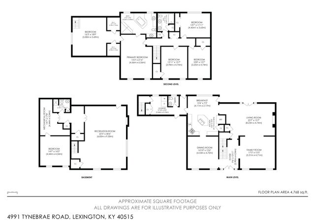
The Hartland Colonial you have been waiting for can now be yours. Join one of Lexington's finest neighborhoods! This 4 bed, 3.5-bath home offers 9ft ceilings on the main level, gleaming hardwood floors and a spacious kitchen. The main level features a timeless layout with dining room, formal living/office and family room with fireplace. Kitchen has granite countertops and an open-concept living area perfect for entertaining. There's a large utility room with a rear staircase with access to the upstairs flex room off the primary suite. The owner's suite is spacious and features a huge bathroom with soaking tub and tiled shower. 3 additional bedrooms and a bathroom also upstairs. In the basement, there's a large den and play area. Tons of storage space and a full bath in the basement with walkout access. Out back there's a large deck, ideal for outdoor gatherings. In the heart of Hartland and just a short walk to the neighborhood pool, pickleball courts, tennis or neighborhood gym. Convenient with Kroger in the neighborhood, local eateries, Freshies Ice Cream and Veterans Park just across Tates Creek. Come see what makes this home and Hartland a special place to live. Book your private showing! Contingent OFFER has been accepted with a 24hr kickout clause. Please continue to show!
- Listing Status:
- Active
- Date Added:
- September 23, 2025 at 05:00AM
- Listing Office:
- The Brokerage : 859-983-7365
- MLS ID:
- 25012659

- Style: Colonial
- Other Structures: Deck
- Parking: DrivewayOff StreetGarage Faces Side
- Roofing: Dimensional StyleShingle
- Windows: Insulated WindowsBlindsScreens
- General: Brick VeneerTwoBlock
- HOA Amenities: ClubhousePlaygroundTennis Court(s)Recreation FacilitiesPoolInsurance775.0Annually
- Golf: ParkTennis Court(s)PoolPickleball
- Originating MLS: Imagine MLS (Bluegrass REALTORS®)
- School District: Fayette County - 1
- County: Fayette
- Zoning: 20015280
- View: Trees/WoodsNeighborhoodSuburbanView
- Fencing: PartialPrivacyWood
- Water: Public
- Sewer: Public Sewer
- Source: Imagine MLS (Bluegrass REALTORS®)
This listing courtesy of The Brokerage
Monthly Payment
- Principal & Interest $
- Property Taxes $
- Home Insurance $
- VA Funding Fee $
Location
Schools Nearby
Millcreek Elementary School
1212 Reva Ridge Way, Lexington, KY, 40517
Grades PK-5
1.63 miles away
Tates Creek Middle School
1105 Centre Pkwy, Lexington, KY, 40517
Grades 6-8
2.31 miles away
Tates Creek High School
1111 Centre Pkwy, Lexington, KY, 40517
Grades 9-12
2.28 miles away






