66 Bayou Circle, Gulfport, MS 39507
- 4 beds |
- 4 baths |
- 3,587 sqft
Single-Family Home
Built in 2008
10,454sqft lot
—— car garage
$331/sqft
Listed 15 days ago
Property Description
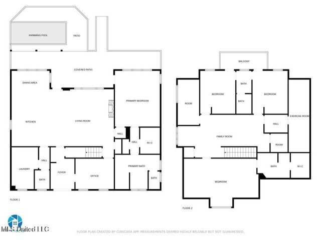
Exterior has New classic White Paint with Green trim on this Fabulous Poured Concrete Home. There are only a few on the coast that are totally formed and poured in place concrete homes with IBHS, the highest level for Fortified for Safe Living designation. Plus a 5v Metal Roof, Close Cell Exterior & Interior Sprayed Foam Insulation, plus new gutters on the home. This home is like a Beautiful fortress with a Kohler gas generator..... 135 mph Impact Resistant Andereson Windows & Doors that open outward for tighter seal against Wind. Walls are 4 ''concrete with floors & attic 6'' reinforced poured concrete with Hardy Board Siding over closed cell foam insulation. DeHumidifyer System built in with a GeoThermal Heat Pumps (2) Water Furnace & Fresh Air Exchange system through out the home. Energy Efficient beyond your wildest dreams and built to be Safe in Hurricane force winds. This all helps with cost of Flood & HO Ins. 3 levels with parking on the ground floor, offering a lovely view of Gillis Cove ara, bulkheaded, matching metal roofed Booat House with Alum=a-vator boat lift with 6000 -8000 lb capacity, pier & dock, Putting Green, Stamped Concrete walkways & patio, plus Lanscaped yard with palm trees & lighting, 4 + car parking with 1 Electric Car Charging Station, Home Elevator system going to all 3 levels, and Raised Garden area. First floor features lg. covered front porch and big backporch & open Pool area with Diamond Quartz Kool Deck surround for the Saltwater Pool with Waterfall, Hot Tub in corner of the backporch. Outdoor with kitchen with Fire Magic Searing Grill, Primo Ceramic Grill, Sonos Sound System for inside & outside enjoyment. This is a beautifully appointed Waterfront home with living & dining areas open to thegourmet kitchen with large bar. Coffered Ceiling with crown Molding in Den with built in Surround Sound for movies or dv's. Built in Bookcases for the collector or reader & an Electric Fireplace in the Living area. Stunning View of Bayou Bernard from all of the living , Dining, and Master Bedroom areas. Bamboo through out living areas & Tile floors in the kitchen/bath/Laundry areas. No carpet. Imported Pendant Murano Glass lights over the sink & island improted from Venice, Italy. Custom Blonde Maple cabinetry with most upper cabinets with fluted glass fronts. GE Monogram Trivection overn, Advantium Microwave & 5 bunner Induction (cool touch) Cook top. SS appliances, beverage fridge, Maytag Refrigerator w/ ice maker, Bosch dishwasher & prep sink on Granite ctops. Custom sealife tiles insets into the backsplash in Kitchen & Pantry/Laundry. Stackable Washer/Dryer stay, Custom glass vessel sink in Powder Rm off Kitchen, Downstairs Master Suite with view of Bayou, Walk -in Railfall Shower w/ body jets & wand. Kohler aerated Soaking Tub w/ His & Hers vanilty's & walk in closets, Expansive Foyer with bookcases open to Office and Living area. Stairs lead to 2nd floor with 2nd Den & Kitchenette. 2 Bedrooms face the Bayou with Jack & Jill Bath between. Also a large 4th bedroom with its own private bath w/ Shower. Storage Rm with 2nd washer/dryer hookups if wanted Laundry on 2nd floor. Bonus area is a large Craft or Storagte Rm, plus an Exercise room with some Gym equipment. Lg Fun Sale & Window Treatments remain. This home has so many features. See full list in Documents. Multi level Porches to enjoy the view of the Bayou. Terrific location on a cul-de-sac in the heart of Bayou View.
- Listing Status:
- Active
- Date Added:
- March 20, 2026
- Data Last Updated:
- April 4, 2026 at 7:37AM
- Listing Office:
- Coldwell Banker Alfonso Realty-Lorraine Rd : 228-287-1000
- Listing Agent:
- Cindy B Riemann : 228-860-9501
- MLS ID:
- 4143067
- Parking: Parking spaces: 4
- Roofing: Metal
- Windows: Double Pane WindowsInsulated WindowsWindow TreatmentsBlinds
- General: Two
- Originating MLS: MLS United
- County: Harrison
- Zoning: LOT 13 GILLIS ADD PART 20909j-02-038.000
- Water: Public
- Sewer: Public Sewer
- Source: MLS United
This listing courtesy of Cindy B Riemann , Coldwell Banker Alfonso Realty-Lorraine Rd
Monthly Payment
- Principal & Interest $
- Property Taxes $
- Home Insurance $
- VA Funding Fee $
Location
Schools Nearby
Bayou View Elementary School
4898 Washington Ave, Gulfport, MS, 39507
Grades KG-5
1.01 miles away
Bayou View Middle School
212 43rd St, Gulfport, MS, 39507
Grades 6-8
1.55 miles away
Gulfport Vocational Annex
100 Perry St, Gulfport, MS, 39507
Grades 9-12
2.39 miles away


