$214,900
3930 Edwards Place Road, Hernando, MS 38632
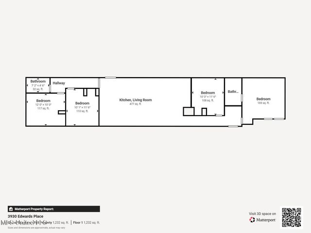
- 4 beds |
- 2 baths |
- 1,280 sqft
Manufactured Home
Built in 1994
1.5acre lot
—— car garage
$168/sqft
Listed 1 month ago
Property Description
3.16 acres (lot 8 and 9), mobile home in Lewisburg school district. Split floor plan, 4 bedrooms and 2 bathrooms. Updated interior, open kitchen and living room concept. Large front porch / deck. All electric, well water 20x20 shop. Conveniently located to Hernando shopping and restaurants. Move in ready.
- Listing Status:
- Pending
- Date Added:
- September 5, 2025 at 05:00AM
- Listing Office:
- Local Agency Realty Group : 662-253-0808
- Listing Agent:
- Jaime R Ross : 901-283-7083
- MLS ID:
- 4124755
- General: Eat-in KitchenOpen Floorplan
- Appliances: DishwasherFree-Standing Electric Range
- Flooring: Vinyl
- A/C: Central Air
- Heating: Central
- General: Workshop
- Parking: GravelDeck
- Roofing: Other
- General: Metal SidingOneOther
- Originating MLS: MLS United
- County: DeSoto
- Zoning: EDWARDS PLACE S-D SEC A LOT 8 & Lot 93064200100000800
- Utilities: Electricity Connected
- Water: Well
- Sewer: Septic Tank
- Source: MLS United
This listing courtesy of Jaime R Ross, Local Agency Realty Group
Monthly Payment
$Est. Payment
- Principal & Interest $
- Property Taxes $
- Home Insurance $
- VA Funding Fee $
Location
Schools Nearby
L
Lewisburg Primary School
1707 Craft Rd, Olive Branch, MS, 38654
Grades PK-2
4.58 miles away
L
Lewisburg Middle School
1711 Craft Rd, Olive Branch, MS, 38654
Grades 6-8
4.68 miles away
L
Lewisburg High School
1755 Craft Rd, Olive Branch, MS, 38654
Grades 9-12
4.90 miles away
