6573 Eastland Court, Southaven, MS 38672
- 3 beds |
- 3 baths |
- 2,378 sqft
Single-Family Home
Built in 2025
0.29acre lot
2 car garage
$189/sqft
Listed 11 days ago
Property Description
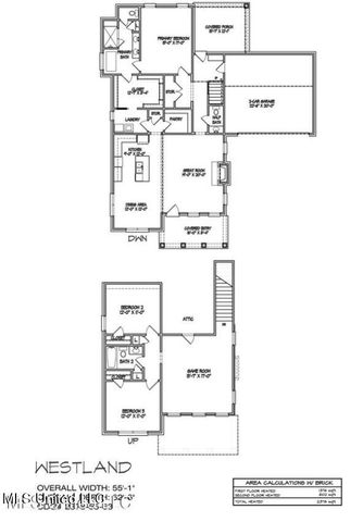
PRE-SALE!! Silo Square's brand new phase, The Estate Cottages, has introduced a brand new floor plan, The Westland! This stunning home immediately welcomes you with a covered front porch on your way to entering the open concept living & dining area. The living room, dining room, and even upstair bonus room is a natural light dream!! Right off of the living room, you'll find a powder room making this home easy for entertaining guests. The HUGE pantry features custom wood shelving makes storage unbeatable. From the master bedroom, you'll enjoy a large master closet also featuring custom wood shelving, but, the best part is the simplicity of walking straight from your closet to your laundry room without ever leaving the privacy of your room! The spacious master bathroom also features a large walk-in shower with full bench seating bringing luxury straight to you. Upstairs boasts a spacious bonus room with tons of natural light as well as the second and third bedrooms and second full bath. SOLD, but can build one for you!!
- Listing Status:
- Pending
- Date Added:
- March 25, 2026
- Data Last Updated:
- April 4, 2026 at 11:37PM
- Listing Office:
- Austin Realty Group, Inc-Her : 662-429-8888
- Listing Agent:
- Becky Austin : 901-283-6084
- MLS ID:
- 4143579
- A/C:
- Heating:
- Fireplace: Fireplace
- Parking: Parking spaces: 2
- Roofing: Architectural Shingles
- General: Two
- HOA Amenities: Maintenance GroundsManagementPest Control400.0Annually
- Originating MLS: MLS United
- County: DeSoto
- Zoning: Lot 199 Silo Square Phase 7Unassigned
- Water: Public
- Sewer: Public Sewer
- Source: MLS United
This listing courtesy of Becky Austin , Austin Realty Group, Inc-Her
Monthly Payment
- Principal & Interest $
- Property Taxes $
- Home Insurance $
- VA Funding Fee $
Location
Schools Nearby
Desoto Central Elementary School
2411 Central Pkwy, Southaven, MS, 38672
Grades 3-5
1.12 miles away
Desoto Central Middle School
2611 Central Pkwy, Southaven, MS, 38672
Grades 6-8
1.09 miles away
Desoto Central High School
2911 Central Pkwy, Southaven, MS, 38672
Grades 9-12
1.18 miles away






