202 - 204 S Princeton, Columbus, OH 43223
- Duplex 
- Built in 1927 
- —— sqft lot 
- —— car garage 
- $——/sqft 
- Listed 4 days ago 
Property Description
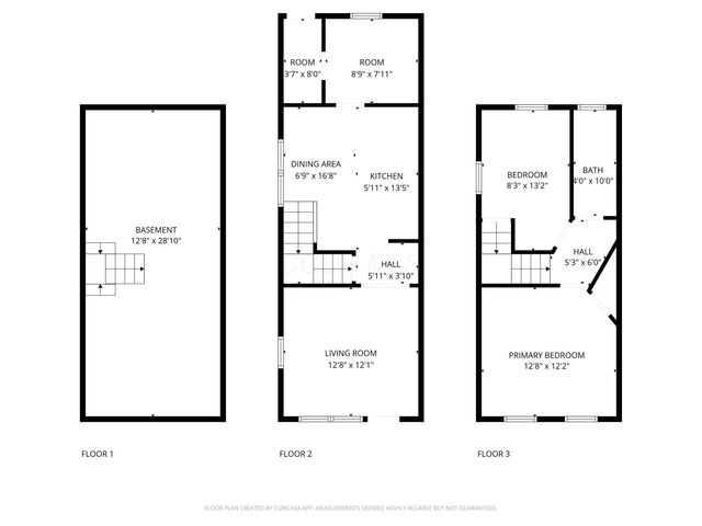
Investor Special - Duplex Opportunity! This solid 1,800 sq. ft. duplex offers two spacious 2-bedroom, 1-bath units—each approximately 900 sq. ft. Whether you're looking to build your rental portfolio or live in one side and rent the other, this property is a smart investment. Both units feature a functional layout and great bones—just needs your finishing touches to make it rent-ready. With some light updates, you'll have strong cash flow potential in no time. Conveniently located near schools, shopping, and major highways, this duplex is ready for its next investor to unlock its full potential. Don't miss this value-add opportunity—turn this diamond in the rough into a true income-producing gem!
- Listing Status:
- Active
- Date Added:
- October 26, 2025 at 05:00AM
- Listing Office:
- Red 1 Realty : 614-585-9020
- Listing Agent:
- Craig Maurer : 216-978-4050
- MLS ID:
- 225040610
- Zoning: 010-018402-00
- Source: Columbus and Central Ohio Regional MLS
This listing courtesy of Craig Maurer, Red 1 Realty
Monthly Payment
- Principal & Interest $
- Property Taxes $
- Home Insurance $
- VA Funding Fee $
Location
Schools Nearby
Starling PK-8
145 S Central Ave, Columbus, OH, 43222
Grades PK-8
0.25 miles away
Starling PK-8
145 S Central Ave, Columbus, OH, 43222
Grades PK-8
0.25 miles away
Columbus Downtown High School
365 S 4th St, Columbus, OH, 43215
Grades 10-12
2.09 miles away






