212 Alonzo, Boerne, TX 78006
- 5 beds |
- 6 baths |
- 4,691 sqft
Single-Family Home
Built in 2025
0.4acre lot
—— car garage
$240/sqft
Listed 1 month ago
Property Description
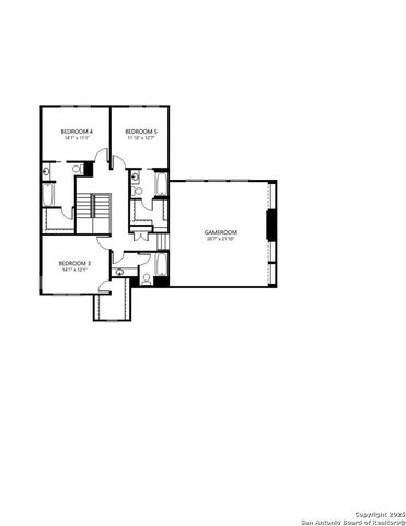
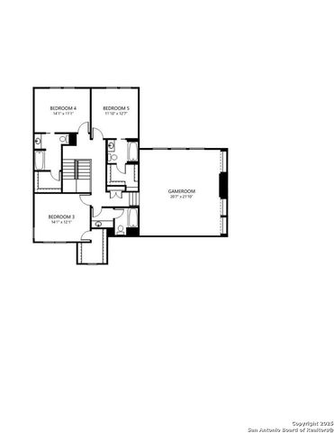
MLS# 1912320 - Built by Drees Custom Homes - Jan 2026 completion! ~ 5 BR, 5.5 BA, Two-Level Model Home. Explore the Trinity model home at Esperanza 80's and 90's! The Trinity is an exciting two-level design with plenty of living space, including a home office, flex room and gameroom! The open living triangle features a luxury kitchen with a deep walk-in pantry. Picture yourself entertaining guests in the beautiful family room and dining room or take the party outside to a rear covered patio with a fireplace. The Trinity is a five bedroom, 5.5 bath home, boasting a luxurious first-floor primary suite. Complete with high-quality finishes and beautiful ceiling details, you'll love the Trinity at Esperanza!.
- Listing Status:
- Active
- Date Added:
- October 2, 2025 at 05:00AM
- Listing Office:
- HomesUSA.com : (888) 872-6006
- Listing Agent:
- Ben Caballero : (469) 916-5493
- MLS ID:
- 1912320
- General: 4 Sides MasonryStone/RockStuccoCovered PatioDouble Pane WindowsPatio SlabSprinkler SystemWrought Iron Fence
- Style: Contemporary
- Pool: None
- Roofing: Composition
- Windows: All Remain
- General: TwoSlab
- HOA Amenities: BBQ/GrillBike TrailsClubhouseControlled AccessJogging TrailsPark/PlaygroundPoolSports CourtTennisVolleyball Court193.0Quarterly
- School District: Boerne
- County: Kendall
- Zoning: Lot 20 Block 6
- Water: CitySewer SystemWater System
This listing courtesy of Ben Caballero, HomesUSA.com
Monthly Payment
- Principal & Interest $
- Property Taxes $
- Home Insurance $
- VA Funding Fee $
Location
Schools Nearby
Dr. Ferdinand L. Herff Elementary School
604 Esperanza Blvd, Boerne, TX, 78006
Grades PK-5
3.24 miles away
Boerne Middle School North
240 Johns Rd, Boerne, TX, 78006
Grades 6-8
2.19 miles away
Boerne Alternative School
235 Johns Rd, Boerne, TX, 78006
Grades KG-12
2.26 miles away


