20927 Stonework Spur, San Antonio, TX 78266
- 4 beds |
 - 3 baths |
 - 2,682 sqft
 
Single-Family Home
Built in 2025
6,098sqft lot
—— car garage
$176/sqft
Listed 1 day ago
Property Description
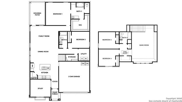
Introducing The Quincy, a two-story home featuring 4 bedrooms, 3 bathrooms, a dedicated study space and a 2-car garage in Brookstone Creek, a new home community located in San Antonio, TX. Here you will find a beautiful open-concept layout with 2698 square feet of funtional living space. Your kitchen, dining area and living room blend together seamlessly with plenty of room for everyday living as well as plenty of natural light from large windows throughout. Your chef's kitchen offers spacious quartz countertops, classic subway tile backsplash, stainless steel appliances and a natural gas cooking range. A large kitchen island with a deep single basin sink overlooks the dining area and living room. Just off the living room is the private main bedroom and ensuite bathroom which offers a spacious walk in closet, dual vanity sinks, and a spacious tiled walk-in shower. Enjoy large windows, quality carpet flooring and a ceiling fan in your main bedroom. Upstairs you will find a versatile game room or loft, a third full bathroom and two guest rooms. Whether these rooms become bedrooms or other bonus spaces, there is sure to be comfort and functionality. Additional features of The Quincy floor plan include natural gas, hard surface flooring at entry, downstairs, halls, living room, kitchen, and dining/breakfast area, tile in all bathrooms and utility room, pre-plumb for water softener loop, faux wood window blinds, and a professionally landscaped and irrigated yard. This home also includes our HOME IS CONNECTED base package. Using one central hub that talks to all the devices in your home, you can control the lights, thermostat and locks, all from your cellular device.
- Listing Status:
 - Active
 - Date Added:
 - November 3, 2025 at 06:00AM
 - Listing Office:
 - Keller Williams Heritage : (210) 493-3030
 - Listing Agent:
 - R.J. Reyes : (210) 842-5458
 - MLS ID:
 - 1920106
 
- General: Stone/RockSiding1 Side MasonryPatio SlabCovered PatioPrivacy FenceSprinkler SystemDouble Pane Windows
 - Style: Two Story
 - Pool: None
 
- Roofing: Composition
 - Windows: All Remain
 - General: TwoSlab
 
- HOA Amenities: PoolClubhousePark/Playground960.0Annually
 - County: Bexar
 
- Zoning: block 15 lot 25
 
- Utilities: CPSCPS
 - Water: City
 
This listing courtesy of R.J. Reyes, Keller Williams Heritage
Monthly Payment
- Principal & Interest $
 - Property Taxes $
 - Home Insurance $
 - VA Funding Fee $
 
Location
Schools Nearby
Garden Ridge Elementary School
9401 Municipal Pkwy, San Antonio, TX, 78266
Grades PK-5
1.46 miles away
Danville Middle School
370 Hubertus Rd, New Braunfels, TX, 78132
Grades 6-8
4.88 miles away
Davenport High School
23255 FM 3009, San Antonio, TX, 78266
Grades 9-12
1.86 miles away






