209 Bark Hollow Ave., Cibolo, TX 78108
- 4 beds |
- 3 baths |
- 2,303 sqft
Single-Family Home
Built in 2025
6,098sqft lot
—— car garage
$185/sqft
Listed 14 days ago
Property Description
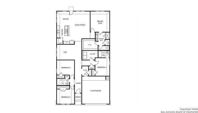
Brand new, energy-efficient home available by Dec 2025! Sip your morning coffee at the Henderson's convenient kitchen island overlooking the dining and living rooms. In the primary suite, elegant, sloped ceilings complement the sizeable space, including ensuite with dual sinks and large walk-in closet. Starting in the $300s and nestled in Cibolo within Northeast San Antonio, Legendary Trails offers elegant brick and stone elevations, in a rural feeling community, with convenient access to major highways, shopping, dining and entertainment at the Forum Shopping Center just minutes away. Known for their energy-efficient features, our homes help you live a healthier and quieter lifestyle while saving thousands of dollars on utility bills. Each of our homes is built with innovative, energy-efficient features designed to help you enjoy more savings, better health, real comfort and peace of mind.
- Listing Status:
- Active
- Date Added:
- October 22, 2025 at 05:00AM
- Listing Office:
- Meritage Homes Realty : (210) 610-3085
- Listing Agent:
- Patrick McGrath : (210) 610-3085
- MLS ID:
- 1917409
- General: 1 Side MasonryBrickRock/Stone VeneerStone/Rock
- Style: One StoryRanchTraditional
- Pool: None
- Roofing: Composition
- Windows: None Remain
- General: OneSlab
- HOA Amenities: PoolPark/PlaygroundJogging Trails37.0Monthly
- School District: Schertz-Cibolo-Universal City ISD
- County: Guadalupe
- Zoning: SF 0194 Plan C404D
- Utilities: GVEC
- Water: City
- Sewer: Green Valley
This listing courtesy of Patrick McGrath, Meritage Homes Realty
Monthly Payment
- Principal & Interest $
- Property Taxes $
- Home Insurance $
- VA Funding Fee $
Location
Schools Nearby
Green Valley Elementary School
1694 Green Valley Rd, Schertz, TX, 78154
Grades PK-4
0.22 miles away
J. Frank Dobie Junior High School
395 W Borgfeld Rd, Cibolo, TX, 78108
Grades 7-8
1.85 miles away
Samuel Clemens High School
1001 Elbel Rd, Schertz, TX, 78154
Grades 9-12
2.15 miles away






